Добро пожаловать на http://vipplan.ru

Випплан Буйнакск - это тысячи проектов домов в нашем каталоге!

Вы всегда сможете найти для себя проект дома вашей мечты! Даже если этого не случилось, мы готовы в любую минуту предложить проект индивидуального дома.

Забыли пароль?
Вы еще не регистрировались?

Перейдите по ссылке ниже на страницу регистрации.

Регистрация...

Внимание!!!

В проектную документацию могут быть внесены изменения любой сложности, в соответствии в Вашими пожеланиями!

Полезные статьи

Виды бассейнов

В наше время, строительство бассейна на территории своего участка, не такая уж и роскошь. Выбор видов и стилей бассейна, на сегодняшний день, очень большой....

Применение свайных фундаментов

Сваи представляют собой длинные стержни, погруженные глубоко в грунт или изготовленные непосредственно в грунте. Покупные сваи с одной стороны имеют заостренный конец, который забивается в почву с помощью специальной техники. Установка свай, изготовленных своими руками, предполагают бурение скважин, армирование и заливку бетонного раствора. ...

Проекты домов и коттеджей > Каталог проектов домов > Проект двухэтажного коттеджа Vg1201

Проект двухэтажного коттеджа Vg1201

Проект двухэтажного коттеджа
Зарегистрируйтесь

Проект № Vg1201


Техническое описание
Общая площадь: 225.33 м2
Жилая площадь: 96.33 м2
Высота здания: 8.2 м
Размеры дома: 15.24м×11.94м
Кол-во комнат: 4
Цокольный этаж: нет
Гараж: нет
Мансарда: нет

Kонструкция
Фундамент: Монолитный ж/б
Перекрытия: Монолитные перекрытия
Материал стен: Газобетон

Архитектурный раздел
Конструктивный раздел
АР+КР - 64 000 (Со скидкой 20%)
Срок разработки проекта — 7 рабочих дней. Проект индивидуального двухэтажного жилого дома с размерами здания 15,24 x 11,94м. Стены - фасадная штукатурка, деревянные панели. Цоколь - отделка клинкерной плиткой. Кровля - гибкая черепица. Отделка вентканалов и дымоходов - штукатурка. Фундамент - монолитная ж/б плита (под всей площадью дома). Наружные стены дома: газобетонные блоки, экструдированный пенополистирол, фасадная штукатурка/деревянные панели. Внутренние стены и перегородки: газобетонные блоки. Пол первого этажа - пол по плите. Пол 2 этажа - ж/б монолитное перекрытие. Перемычки - монолитные и сварные из профиля проката. Окна - металлопластиковые, выполненные по индивидуальному заказу. Лестница выполняется по индивидуальному заказу.
Генплан застройки участка / Паспорт проекта 7000 руб / 10000 руб
Инженерный раздел (полный) 112500 руб
Смета на строительство 56250 руб
Теплотехнический расчет материалов стен Бесплатно
Стоимость проекта со незначительнми изменениями 74350 руб
Стоимость проекта со средними изменениями* 91300 руб
Стоимость проекта со значительными изменениями** 95800 руб

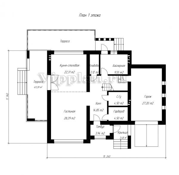
План первого этажа


Тамбур — 3,94 м2
Холл — 14,85 м2
Кухня — 22,31 м2
Гостиная — 28,29 м2
Кладовая — 3,12 м2
Бойлерная — 9,55 м2
С/у — 4,50 м2
Гардероб — 4,50 м2
Гараж — 27,20 м2

Проект двухэтажного коттеджа

Проект двухэтажного коттеджа

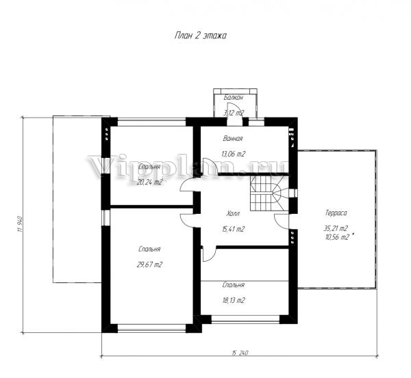
План второго этажа


Холл — 15,41 м2
Ванная — 13,06 м2
Спальня — 20,24 м2
Спальня — 29,67 м2
Спальня — 18,13 м2
Терраса — 35,21 м2
Проект двухэтажного коттеджа Проект двухэтажного коттеджа Проект двухэтажного коттеджа Проект двухэтажного коттеджа

Модификации проектов

Внесение изменений и привязка к участку строительства

В любой из проектов от компании VIPplan - Буйнакск по вашему желанию могут быть внесены изменения в материалы стен, материалы наружной отделки дома, а также будет произведена адаптация проекта под конкретный регион строительства (с учетом грунтов региона, геологических особенностей вашего участка и местных климатических условий) - БЕСПЛАТНО !!! (кроме проектов со скидкой и проектов наших партнеров).

Любой из проектов, размещенных на сайте buynaksk.vipplan.ru мы можем выполнить из требуемых вам строительных материалов: ячеистый бетон (газобетон, пеноблок), керамоблок, кирпич, шлакоблок, бетонный блок, дерево (брус, клееный брус), каркасная технология (деревянный каркас, металлокаркас (ЛСТК)).

Фасад дома и его наружную отделку так же возможно выполнить с применением различных облицовочных материалов: структурной штукатурки, (с утеплителем и без), сайдингом (пластиковый или металлосайдинг), фиброплитами, кирпича.

 
6 Избранные
проекты

Доставка проектов по России: Москва (Московская область), Санкт-Петербург (Ленинградская область), Краснодар, Ростов-на-Дону, Ставрополь, Сочи, Волгоград, Новосибирск, Белгород, Брянск, Воронеж, Саратов, Хабаровск, Астрахань, Нальчик, Владикавказ, Екатеринбург, Тюмень, Самара, Нижний Новгород, Казань, Пермь, Уфа, Челябинск, Красноярск, Ханты-Мансийск, Иркутск, Курган, Оренбург, Омск, Томск, Барнаул, Новокузнецк, Кемерово, Абакан, Чита, Якутск, Южно-Сахалинск, Петропавловск-Камчатский и страны ближнего зарубежья: Белоруссия, Украина, Казахстан